Doppelhaushälfte | Doppelhäuser
Doppelhaushälfte | Doppelhäuser

Die Wohnform der Zukunft

Vorteile im Doppelpack. Gemeinsamkeit hilft sparen. Mit der Entscheidung für ein Doppelhaus werden das Grundstück und das Vermögen optimal genutzt. Dass dabei die Architektur ganz und gar nicht gleichförmig oder gar langweilig sein muss, zeigen unsere Vorschläge der CREATIV-Linie. Und bei der Grundrissgestaltung entstehen in jedem Haus getrennte Wohnbereiche auf mehreren Ebenen. Für ganz viel Privatsphäre und viel Freiheit für die ganze Familie. Individualität und Harmonie – nicht nur für Zwillinge!

VARIANTEN DES DOPPELHAUSES 159

Im Zusammenspiel mit einer anderen Dachform, Fassade und Farbe können Sie das DOPPELHAUS 159 so individuell gestalten, wie es Ihrer Natur und Ihrer Vorstellung an das perfekte Wohnen entspricht. Wir realisieren Ihren Traum – denn gemeinsam mit Ihnen verwirklichen wir Ihre Ideen und Wünsche zu einem Eigenheim, das so viel mehr ist als ein Haus. Ihr Zuhause.

Doppelhaushälfte | Doppelhäuser

Basishaus: Erd-, Ober- und Dachgeschoss

Eintreten und sich wohlfühlen! Die klassische Grundrissgestaltung unserer Doppelhausplanung, die wir Ihnen hier als Basisvariante vorstellen, hat sich vielfach bewährt. Hier sind mehrere Dach-Ausbauvarianten wie z. B. Dachflächenfenster, Studioausbau mit Bad oder Dachgauben möglich.

mit Keller

Viele RÖTZER-Kunden entscheiden sich für ein Haus mit Keller als Stau- oder Hobbyraum. Wir bieten Ihnen diesen aus einer Hand, in wasserdichter Ausführung oder, wenn es die Bodenverhältnisse zulassen, gerne auch als Wohnkeller in Ziegelbauweise.


ohne Keller

Der Hauseingang erfolgt über eine abgetrennte Diele. Hier wurde bereits eine Nische für Ihre Garderobe eingeplant. Der Technikraum verfügt über knapp 7m² und sorgt somit für ausreichend Platz für Wärmepumpe, Speicher und Co.



Doppelhaushälfte | Doppelhäuser

Walmdach: Erd- und Obergeschoss

Sie lieben das Mediterrane? Unsere Empfehlung: Das Walmdach. Mit dem zweiten Vollgeschoss und einem Walmdach verändert sich das Doppelhaus zu einer Stadtvilla. Ein Baustil, der sich vielerorts besonderer Beliebtheit erfreut.

mit Keller

Viele RÖTZER-Kunden entscheiden sich für ein Haus mit Keller als Stau- oder Hobbyraum. Wir bieten Ihnen diesen aus einer Hand, in wasserdichter Ausführung oder, wenn es die Bodenverhältnisse zulassen, gerne auch als Wohnkeller in Ziegelbauweise.


ohne Keller

Der Hauseingang erfolgt über eine abgetrennte Diele. Hier wurde bereits eine Nische für Ihre Garderobe eingeplant. Der Technikraum verfügt über knapp 7m² und sorgt somit für ausreichend Platz für Wärmepumpe, Speicher und Co.



Doppelhaushälfte | Doppelhäuser

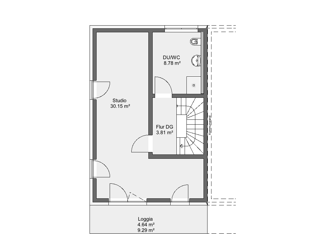
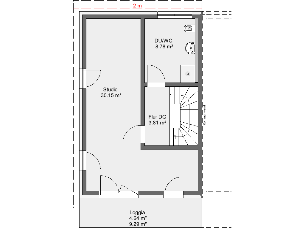
Pultdach: Erd-, Ober- und Staffelgeschoss

Bei der Pultdachlösung genießen Sie das Dachstudio mit maximaler Kopffreiheit. Ein weiteres Highlight dieser Variante ist die Dachterrasse bzw. Loggia.

mit Keller

Viele RÖTZER-Kunden entscheiden sich für ein Haus mit Keller als Stau- oder Hobbyraum. Wir bieten Ihnen diesen aus einer Hand, in wasserdichter Ausführung oder, wenn es die Bodenverhältnisse zulassen, gerne auch als Wohnkeller in Ziegelbauweise.


ohne Keller

Der Hauseingang erfolgt über eine abgetrennte Diele. Hier wurde bereits eine Nische für Ihre Garderobe eingeplant. Der Technikraum verfügt über knapp 7m² und sorgt somit für ausreichend Platz für Wärmepumpe, Speicher und Co.



Doppelhaushälfte | Doppelhäuser

FLACHDACH: Erd-, Ober- und Staffelgeschoss

Sind Sie der moderne Typ und bevorzugen die urbane Kubus-Form? Dann wäre das Flachdach die richtige Wahl. Der moderne Bauhaus-Stil sorgt für maximale Kopffreiheit. Die Dachterrasse lädt zum Verweilen ein und sorgt für einen tollen Ausblick.

mit Keller

Viele RÖTZER-Kunden entscheiden sich für ein Haus mit Keller als Stau- oder Hobbyraum. Wir bieten Ihnen diesen aus einer Hand, in wasserdichter Ausführung oder, wenn es die Bodenverhältnisse zulassen, gerne auch als Wohnkeller in Ziegelbauweise.


ohne Keller

Der Hauseingang erfolgt über eine abgetrennte Diele. Hier wurde bereits eine Nische für Ihre Garderobe eingeplant. Der Technikraum verfügt über knapp 7m² und sorgt somit für ausreichend Platz für Wärmepumpe, Speicher und Co.



Unsere
Referenzen

Individuell. Inspirierend.
nach Kundenwunsch.

mehr erfahren

Jetzt Kontakt
aufnehmen

Hier gehts zu unserem
Kontaktformular.

zur Anfrage