Einfamilienhaus | Simply Clever 136
Einfamilienhaus | Simply Clever 136

SIMPLY CLEVER 136
FERTIGER GRUNDRISS.
TOP PREIS-LEISTUNG.

Mit dem simply clever 136 von Rötzer-Ziegel-Element-Haus bauen Sie Ihren Traum vom Eigenheim. Unkompliziert - zum besten Preis. Unser simply clever 136 ermöglicht es Ihnen, Zeit, Kosten und Aufwand zu sparen für ein neues Lebensgefühl.

DIE TOP MERKMALE IHRES SIMPLY CLEVER 136

  • Massiv aus Ziegel
  • Schnell wie ein Fertighaus dank Elementbauweise
  • inkl. Luft-Wasser-Wärmepumpe / Fußbodenheizung
  • Mehrere Grundrissvarianten bzw. Dachformen möglich
  • Leistungsaufstockung möglich
  • Bemusterungsservice
  • Professionelle Baubetreuung
  • inkl. Planungsleistungen (Eingabeplanung, Werk- und Detailplanung)

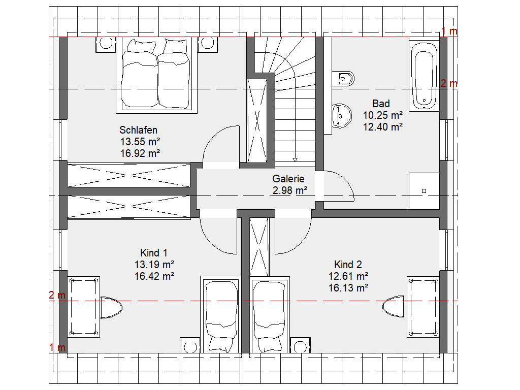
DAS ERDGESCHOSS

Erdgeschoss

Ein Erdgeschoss ist das unterste Stockwerk eines Gebäudes und spielt eine wichtige Rolle in der Funktionalität und dem Zugang. Es dient oft als Hauptzugangspunkt für Bewohner und Besucher und enthält häufig gemeinschaftliche oder öffentliche Bereiche wie Eingangshallen, Empfangsräume, Geschäfte oder Büros. In Wohngebäuden können im Erdgeschoss Wohnungen, Hausmeisterbüros oder Gemeinschaftsräume untergebracht sein. Durch seine Lage bietet das Erdgeschoss direkten Zugang zum Außenbereich und kann durch seine Gestaltung zur Barrierefreiheit und Sicherheit des Gebäudes beitragen.


DACHFORMEN DES SIMPLY CLEVER 136

Wählen Sie aus:
• 5 Erdgeschossvarianten
• 4 Dachformen und
• 6 Obergeschoss bzw. Dachgeschossvarianten.

Einfamilienhaus | Simply Clever 136

SATTELDACH 38° BASIS

Die Planungsphase ist der Grundstein für den Stil und Charme Ihres Hauses. Wir starten mit der Basis.

ZWERCHHAUS MIT SATTELDACH

Einfamilienhaus | Simply Clever 136

Das Zwerchhaus mit Satteldach ist die ideale Wahl für Liebhaber des Landhausstils. Mit der passenden Farbkombination der Fassade können Sie diesen Charakter weiter unterstreichen.


ZWERCHHAUS MIT PULTDACH

Einfamilienhaus | Simply Clever 136

Das Pultdach öffnet das Haus nach außen und vermittelt ein urbanes Lebensgefühl. So einfach kann‘s gehen – ein wenig mehr für maximales Raum- und Lebensgefühl.



Einfamilienhaus | Simply Clever 136

SATTELDACH 180 CM KNIESTOCK

Ein höherer Kniestock verhilft zu einer besseren Raumnutzung im Dachgeschoss. Zum Beispiel im Gäste-Bad. Die Dachschräge beginnt erst an der Stelle, die den Benutzer z. B. das Waschbeckens nicht beeinträchtigt. Auch wenn Sie planen, dass Ihre Kinder das Dachgeschoss bewohnen, so stellen Sie in allen Zimmern sicher, dass mehr Raum zum Leben zur Verfügung steht.


Einfamilienhaus | Simply Clever 136

SATTELDACH 22 ° E + 1

Sie wünschen ein Satteldach und dennoch Wohnkomfort auf zwei Vollgeschossen? Das ist auch möglich. Und zwar mit dieser Variante. Diese Variante sorgt für eine normale Raumhöhe - auch in der oberen Etage


Einfamilienhaus | Simply Clever 136

WALMDACH E + 1

Sie lieben das Mediterrane? Unsere Empfehlung: Das Walmdach. Mit dem zweiten Vollgeschoss und einem Walmdach wird das Simply Clever 136 zu einer modernen Stadtvilla. Einem Baustil, der sich vielerorts besonderer Beliebtheit erfreut.


Unsere
Referenzen

Individuell. Inspirierend.
nach Kundenwunsch.

mehr erfahren

Jetzt Kontakt
aufnehmen

Hier gehts zu unserem
Kontaktformular.

zur Anfrage