Mehrfamilienhaus
Mehrfamilienhaus

Groß gebaut – privat gedacht

Mehrgenerationen- und Mehrfamilienhäuser haben ihre eigenen Gesetze. An Privatsphäre genauso wie an Energiekonzepte und an Schallschutzmaßnahmen. Die Ziegel-Element-Bauweise spielt dabei alle Vorzüge aus. Denn der Ziegel ist nicht nur ein wunderbarer Energiespeicher, sondern bietet auch besonders gute Dämmwerte. Und in Verbindung mit einer intelligenten Haustechnik ist ein Rötzer-Mehrfamilienhaus immer fit für die Zukunft. 

Mehrfamilienhäuser - speziell für Sie

Die Nachfrage wächst und die Ansprüche auch. Früher waren Mehrfamilienhäuser Standardbauten. Heute werden Sie individuell und exakt für spezielle Bedürfnisse erstellt: Als Mehrgenerationenhaus für die ganze Familie. Als Wohnanlage im städtischen Raum. Oder als Bauprojekt eines kommunalen Bauträgers. Rötzer hat die Erfahrung Ihnen ein passgenaues Konzept zu erstellen. Und die Umsetzung aus einer Hand bis zur schlüsselfertigen Übergabe durchzuführen.

Mehrfamilienhäuser

Mehrfamilienhaus

2-Familienhaus: MFH 2WE - I

Das Mehrfamilienhaus mit zwei nebeneinanderliegenden Wohneinheiten und einem klassischen Satteldach überzeugt auf ganzer Linie.

Erdgeschoss

Mehrfamilienhaus

Die Besonderheit dieses Mehrfamilienhauses ist die Gestaltung des Technikraums. Beide Wohneinheiten verfügen über einen gemeinsamen Technikraum, welcher von außen zu erreichen ist.


Basis Dachgeschoss

Mehrfamilienhaus

Die Basisvariante verfügt über ein Dachgeschoss mit jeweils zwei Dachflächenfenstern, welche für ausreichend Tageslicht in Bad und Gäste-/Arbeitszimmer sorgen.


Alternative Satteldach mit Zwerchhaus

Mehrfamilienhaus

Für noch mehr Lichteinfall und Wohnraum im Dachgeschoss sorgt ein Zwerchhaus. Das Zwerchhaus in Verbindung mit einem Flachdach lässt das Mehrfamilienhaus noch moderner wirken. Weiterhin sorgt dies für mehr Kopffreiheit.


Alternative Obergeschoss

Mehrfamilienhaus

Sie wünschen ein zweites Vollgeschoss und keine Dachschrägen? Kein Problem. Dann ist diese Variante mit Walmdach genau das Richtige für Sie. Details in der Farbgestaltung verleihen Ihrem Eigenheim zusätzlich einen ganz besonderen Charme.


Alternative Studioausbau

Mehrfamilienhaus

Zwei Vollgeschosse und das Dachgeschoss dennoch als Wohnraum nutzen funktioniert mit dieser Variante. Der Studioausbau im Dachgeschoss lässt sich als Schlafraum, aber auch für Homeoffice, als Atelier und Co. nutzen. Ihrer Kreativität sind keine Grenzen gesetzt. Sie entscheiden, wie Sie das Dachgeschoss nutzen möchten.



Mehrfamilienhaus

2-Familienhaus: MFH 2WE - II

Ein klassisches Satteldach und zwei übereinanderliegende Wohneinheiten präsentiert unser Mehrfamilienhaus 2 WE II.

Haus ohne Keller - Erdgeschoss

Mehrfamilienhaus

Das Erdgeschoss verfügt über einen Technikraum mit knapp 10m², welcher durch das Treppenhaus für beide Wohneinheiten zugänglich ist. Hier werden Wärmepumpe, Speicher und Co. untergebracht.


Haus mit Keller - Erd- und Kellergeschoss

Mehrfamilienhaus

Viele RÖTZER-Kunden entscheiden sich für ein Haus mit Keller als Stau- oder Hobbyraum.
Durch die Verlagerung des Technikraums in das Kellergeschoss erhält die Wohneinheit im Erdgeschoss einen großzügigeren Wohn- und Essbereich und somit mehr Wohnfläche.


Dachgeschoss Basis

Mehrfamilienhaus

Ein Zwerchhaus im Dachgeschoss mit integriertem Balkon lässt die zweite Wohneinheit sehr gemütlich erscheinen. Für ausreichend Tageslicht sorgen die großzügigen Fensterelemente.


Alternative Obergeschoss

Mehrfamilienhaus

Für ein zweites Vollgeschoss sorgt die Wahl des Flachdaches. Moderne Wohnträume im Bauhausstil. Die Wohneinheit im Obergeschoss darf sich über einen Balkon als Rückzugsort freuen. Dieser Balkon dient im Erdgeschoss automatisch für eine Terrassenüberdachung.



Mehrfamilienhaus

3-Familienhaus: MFH 3WE

Drei Wohneinheiten unter einem Dach? Hier haben wir etwas für Sie!
Die Wohnung im Erdgeschoss ist barrierefrei nutzbar.

Alternative Gäste-WC

Mehrfamilienhaus

Anstelle eines Abstellraums verfügt diese Variante in allen drei Etagen über ein zusätzliches Gäste-WC. Inzwischen ist dies für viele Mieter ein absolutes Must-Have.



Mehrfamilienhaus

4-Familienhaus: MFH 4WE

Eine moderne Stadtvilla mit vier Wohneinheiten und genügend Platz für einen Aufzug.
Auch bei dieser Variante sind die beiden Wohneinheiten im Erdgeschoss barrierefrei nutzbar.


Mehrfamilienhaus

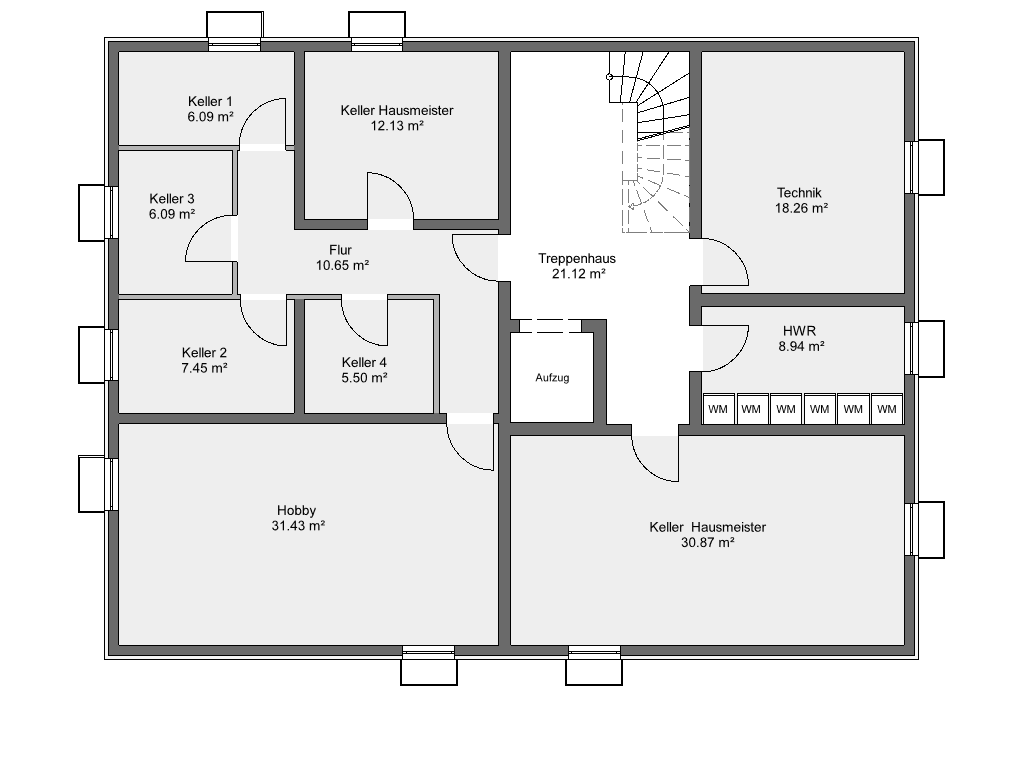
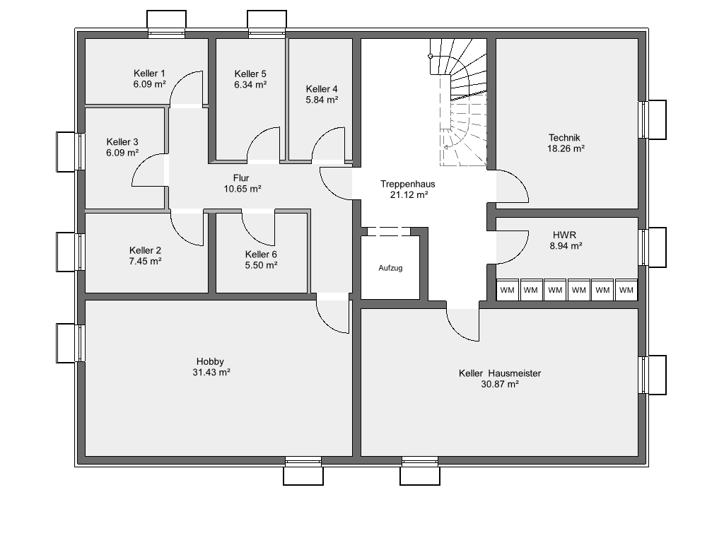
6-Familienhaus: MFH 6WE

Vier Etagen und sechs Wohneinheiten: Diese sechs Wohnungen bieten genug Platz für alles, was man zum Wohlfühlen braucht. Das Kellergeschoss verfügt über Kellerabteile für jede Wohneinheit. Die Haustechnik ist ebenfalls im Kellergeschoss untergebracht.


Unsere
Referenzen

Individuell. Inspirierend.
nach Kundenwunsch.

mehr erfahren

Jetzt Kontakt
aufnehmen

Hier gehts zu unserem
Kontaktformular.

zur Anfrage