178m² Wohnglück - viel Platz für die gesamte Familie!
Einfamilienhaus

Erfolgsgeschichte

Viel Platz für die gesamte Familie!

Im oberbayerischen Landkreis Fürstenfeldbruck hatte Familie S. diesen einen ganz besonderen Traum. Ein individuell geplantes Eigenheim – nach Ihren Vorstellungen und Wünschen – und dennoch schnell und massiv errichtet. Das Grundstück war bereits in Familienbesitz. Somit war der Grundstein für das Projekt Hausbau bereits gelegt.

Auf der Suche nach dem richtigen Partner, haben uns Freunde und Nachbarn unserer Familie, welche schon mit der Firma Rötzer gebaut haben, auf diese aufmerksam gemacht. Somit war die Firma Rötzer für uns auf alle Fälle „ein heißer Kandidat“ auf der Liste der Bauträger.

Familie S. aus Fürstenfeldbruck

Quote Quote

Individualität wurde groß geschrieben

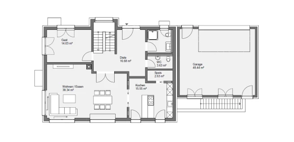
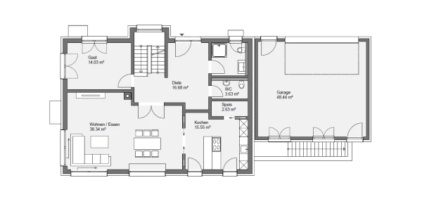
Ein großzügiges Familiendomizil mit integrierter Garage und Keller sollte es werden. Schließlich hatte Familie S. bereits viel Zeit in die Planung mit einem externen Architekturbüro gesteckt. Auf dieser Basis wurde dann nochmals an den einzelnen Grundrissen perfektioniert, kalkuliert und so kam es dann Ende 2021 zum Bauvertrag. Das Unterzeichnen der Vertragsunterlagen der eigenen vier Wände – ein ganz besonderer Meilenstein für unsere Häuslebauer.

Innovativ und klimafreundlich

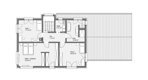
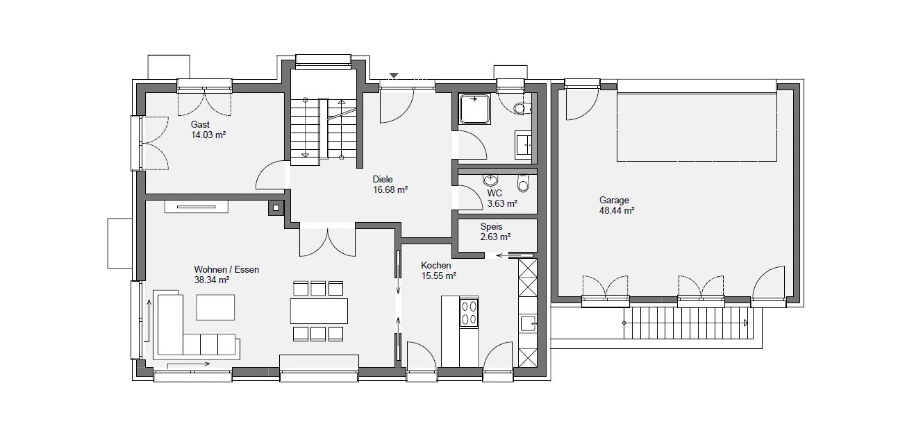
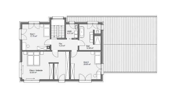
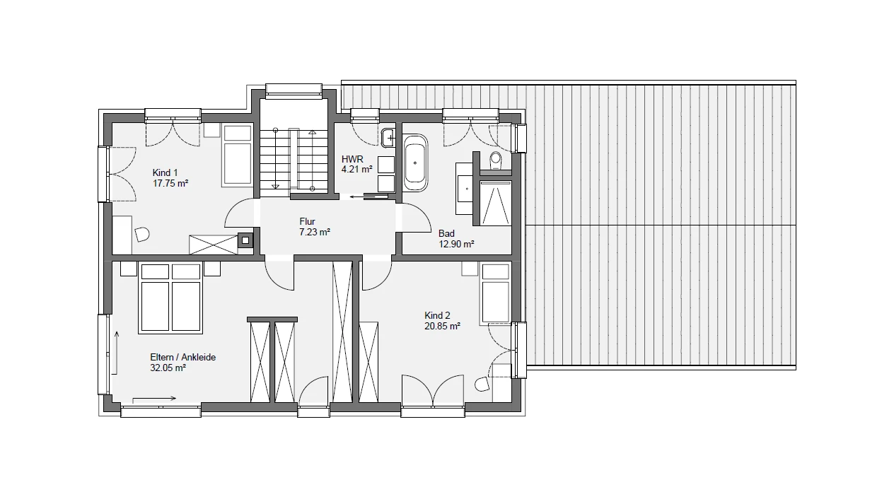
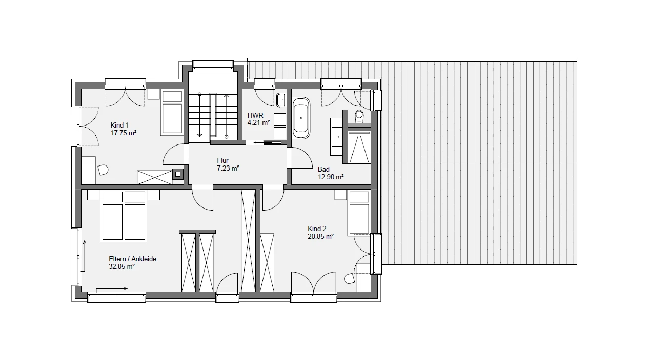
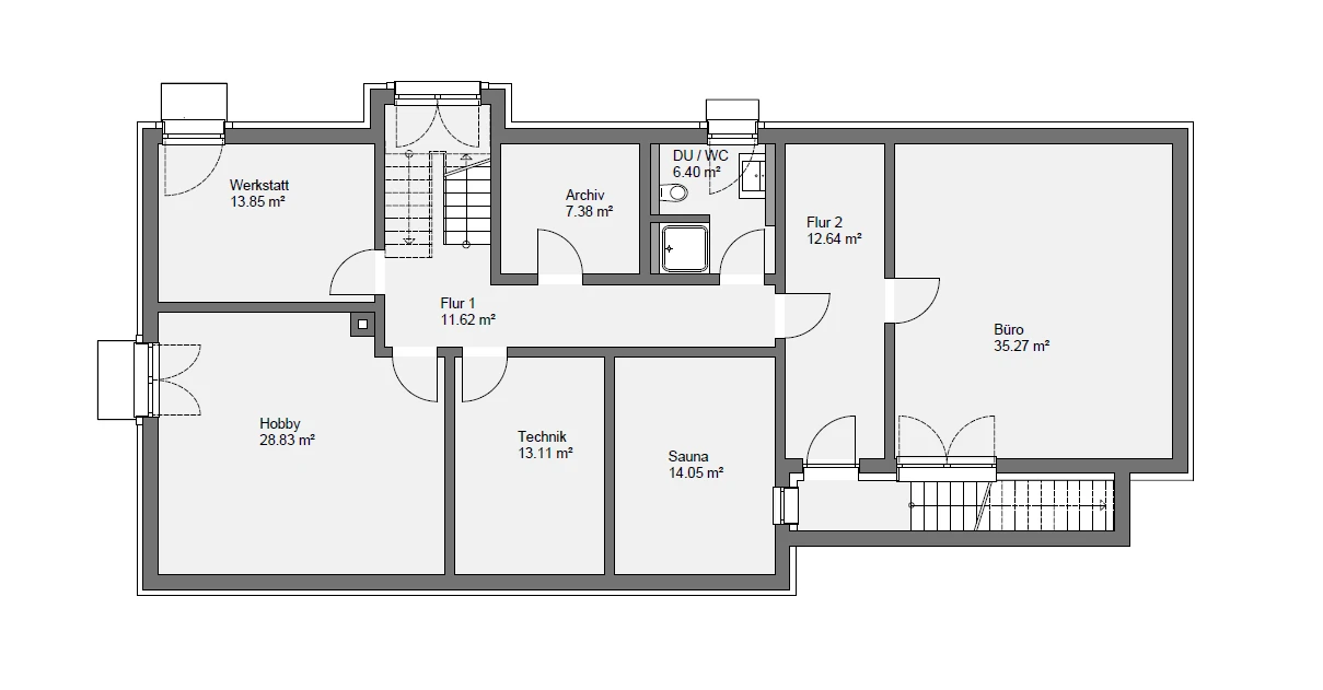
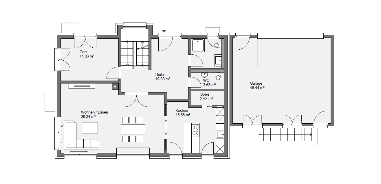
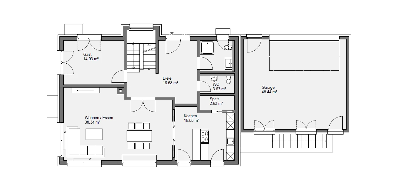
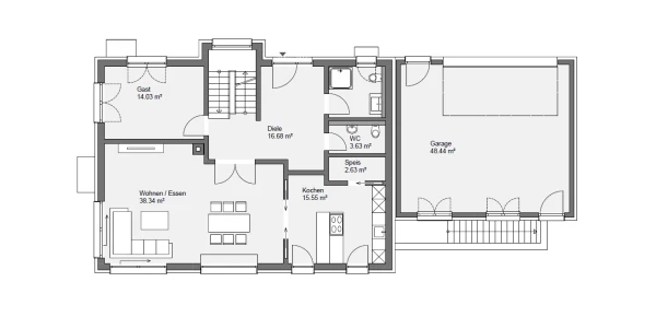
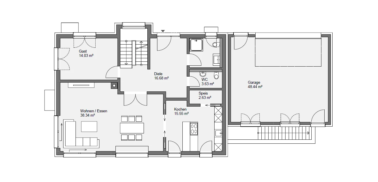
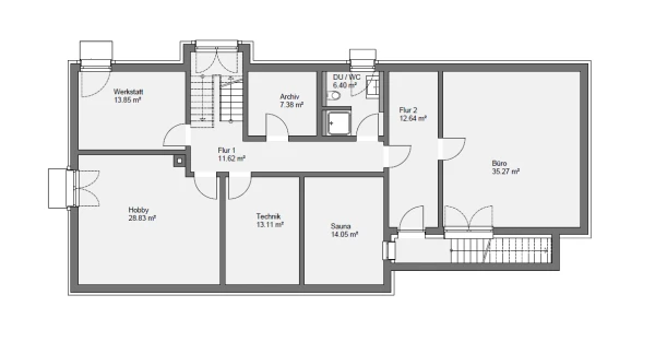
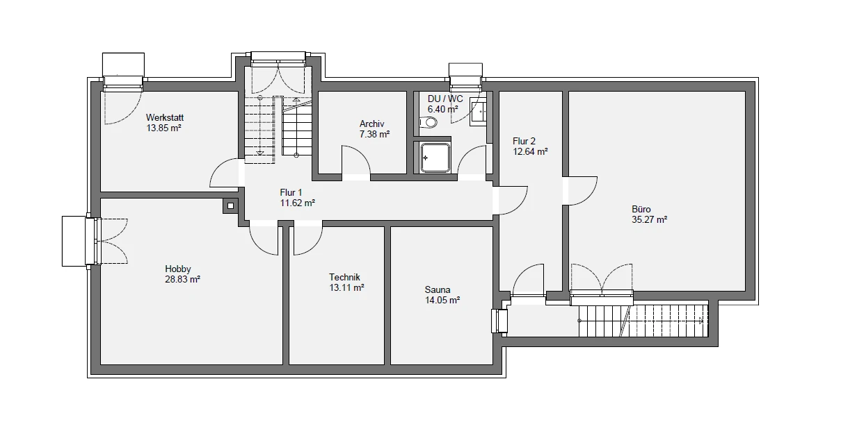
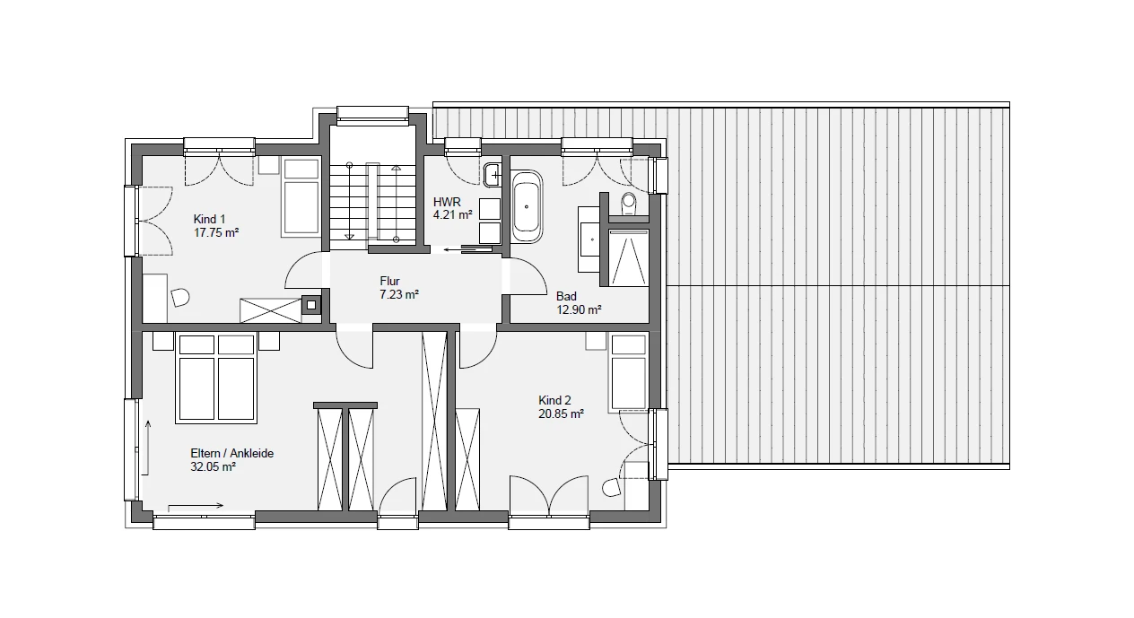
Im Erdgeschoss befindet sich der Wohnbereich des Gebäudes. Dieser verfügt über knapp 84m² und wurde mit einer Fußbodenheizung in Verbindung mit einer klimafreundlichen Luft-Wasser-Wärmepumpe ausgestattet. Das Obergeschoss bietet ca. 94m² Wohnfläche - ausreichend Platz zum Leben und Wohlfühlen. Das Highlight des Obergeschosses ist unsere innovative Ziegel-Klimadecke zum Heizen und/oder Kühlen. Nach dem Vorbild der Natur vereinen wir in unserer Ziegel-Klima-Decke die Vorzüge des gebrannten Ziegels mit dem Prinzip natürlicher Wärmestrahlung und stiller Kühlung. Im Winter wohlig warm, im Sommer angenehm kühl.

Inzwischen sind auch die Außenanlagen fertiggestellt und das Zuhause wurde mit viel Liebe zum Detail eingerichtet. Neben der Ziegel-Klimadecke ist das Sitzfenster im großzügigen Wohn- und Essbereich ein weiteres Highlight, welches die Bauherrin nicht mehr missen möchte.

Die tolle Betreuung und Beratung trotz der Corona Schwierigkeiten war einfach nur traumhaft. Wir haben uns gut aufgehoben und umsorgt gefühlt. Dazu kam noch die Möglichkeit der Klima-Decke, welche uns sofort überzeugt hat.

Bauherr aus Fürstenfeldbruck

Quote Quote
178m² Wohnglück - viel Platz für die gesamte Familie!
178m² Wohnglück - viel Platz für die gesamte Familie!
178m² Wohnglück - viel Platz für die gesamte Familie!
178m² Wohnglück - viel Platz für die gesamte Familie!

Das Rötzer-Team hatte immer ein offenes Ohr

Die junge Baufamilie fühlt sich rundum wohl und genießt die Zeit im eigenen Rötzer-Haus in vollen Zügen. Eine gelungene Mischung aus wohnlich und modern ist hier entstanden – wir sind begeistert.

„Wir haben mit Rötzer nur positive Erfahrungen gemacht. Sie haben sich jedem Anliegen sofort angenommen und auch unkomplizierte Lösungen gefunden. Es ist egal, ob es Frau Zach, das Team bei der Bemusterung oder Bauleitung Herr Kraus war: Wir sind immer offen mit unseren Problemen empfangen worden und es wurden schnelle, einfache Lösungen gefunden. Auch bei Lieferschwierigkeiten der Wärmepumpe ist Rötzer sofort eingesprungen und hat eine Lösung gefunden und Sie uns auf eigene Kosten geliefert", so die Bauherrin auf die Frage zur Erfahrung mit Firma Rötzer.

Wir bedanken uns ganz herzlich für dieses tolle Lob und haben uns sehr gefreut, diesen Traum vom Eigenheim wahr werden zu lassen!

DATEN ZUM HAUS

Baujahr

2022

Haustyp

Einfamilienhaus

Dachform

Satteldach

Geschosse / Etagen

2

Heizsystem

Fußbodenheizung im EG
Ziegelklimadecke im OG

Wohnfläche gesamt

172 qm

WEITERE ERFOLGSGESCHICHTEN

Einfamilienhaus

Flachdach-Traumhaus | Klassische Moderne

Dieser Bauhaus-Quader liegt nur wenige Minuten von der Würzburger Residenz entfernt. Der Eingangsbereich ist das Gesicht eines …

zur Referenz

Einfamilienhaus

Moderner Bungalow bei Regensburg

In Zeitlarn bei Regensburg entstand dieser einladende Bungalow, der mit klarer Architektur, durchdachter Raumaufteilung und einem …

zur Referenz

Einfamilienhaus

Der absolute Wohntraum

Ein echter Hingucker! Dieses Einfamilienhaus vereint modernes Design, klare Linien und höchste Bauqualität. In sonniger Hanglage …

zur Referenz

Doppelhaushälfte

Eine moderne, stilvolle Doppelhaushälfte in Massivbauweise

Für viele Familien ist der Bau eines Eigenheims ein Lebenstraum. So auch für unsere Baufamilie, die sich im Landkreis Rosenheim …

zur Referenz

Mehrfamilienhaus

Ein 5-Familienhaus als Immobilieninvestment

Immobilien gelten seit jeher als eine der stabilsten Formen des Anlagevermögens. Insbesondere der Bau in Massivbauweise bietet …

zur Referenz

MEHRFAMILIENHAUS

Zweifamilienhaus bauen: doppeltes Zuhause, doppeltes Glück!

Im Münchner Stadtteil Obersendling finden gleich zwei Parteien auf vier Etagen ihr Glück – nämlich im Zweifamilienhaus der …

zur Referenz

DOPPEL- /REIHENHAUS

„Wiederholungstäter“ baut auf Rötzer-Qualität: Attraktive Doppelhaus-hälften in Höhenkirchen

Selbst, wenn man einen Neubau nicht persönlich bezieht, wünscht man sich und seinen Mietern einen reibungslosen Bauablauf und …

zur Referenz

EINFAMILIENHAUS

Land-Feeling: Ein modernes Creativ-Haus in ländlicher Lage

"So ein Hausbau ist echt anstrengend.“ Als Stefan Winzinger mit dem Gedanken spielte, sich ein Eigenheim zu schaffen, hörte er …

zur Referenz

EINFAMILIENHAUS

Moderner Kubus: Ein Zuhause mit klarem Wohlfühlfaktor.

Zuhause bei Familie Teschke: Wir wollten wissen, was ist den Menschen in den eigenen vier Wänden besonders wichtig, was machen …

zur Referenz

EINFAMILIENHAUS

Einfamilienhaus in Starnberg: Darüber staunen sogar die Nachbarn

Ein neues Haus bedeutet in der Regel auch neue Nachbarn. Familie Rittweger hatte gleich doppeltes Glück, als sie 2019 in ihr …

zur Referenz

EINFAMILIENHAUS

Einfamilienhaus in Grünsfeld: Darum hat Familie Göbel sich für ein Rötzer Ziegel Element Haus entschieden

Viele Baufamilien kämpfen lange vor der eigentlichen Bauplanung mit der Überlegung, ob sie ein Fertighaus in Holzständerweise …

zur Referenz

EINFAMILIENHAUS

Erfolgreicher Bau auch in der Krise: Familie Müller freut sich über ihr neues Einfamilienhaus

Manchmal läuft einfach alles wie am Schnürchen – und das trotz Ausnahmesituation. Denn wer beschlossen hat, im Jahr 2021 zu …

zur Referenz

DOPPEL- /REIHENHAUS

Hausbau in Stuttgart: Familie Battiato berichtet von ihrem Rötzer-Bauerlebnis

Familie Battiato begann ihre Reise im Rötzer-Musterhaus Stuttgart. Hier informierten sich die zukünftigen Eigenheim-Besitzer über …

zur Referenz

Mehrfamilienhaus

Mehrfamilienhaus bauen: Moderner 3-Spänner in München

Traumhäuser entstehen nicht immer zur Nutzung für die eigene Familie, häufig bauen wir auch Mehrfamilienhäuser zur Vermietung – …

zur Referenz

EINFAMILIENHAUS

Zuverlässiges Bauunternehmen in der Oberpfalz: So war der Hausbau mit Rötzer

Als Hoteliers-Familie blieb Familie Greiner aus Neunburg vorm Wald nicht viel Zeit, um sich selbst um den Hausbau zu kümmern. …

zur Referenz

STADTVILLA

Hausbau in Regensburg: Vom Traum zur Realität in nur einem Jahr

Familie Scheck entdeckte Rötzer auf einer Bau-Messe im Raum Regensburg und schnell stand fest, dass das eigene Traumhaus in …

zur Referenz

SATTELDACH

Hausbau in der Oberpfalz: schnell & massiv

In der schönen Oberpfalz verwirklichte sich für Familie Duschner aus Dieterskirchen der Traum vom Eigenheim. Wichtig war der …

zur Referenz

STADTVILLA

Familie Schrödel erzählt von ihren Erfahrungen mit Rötzer-Ziegel-Element-Haus: so entstand ihre Stadtvilla.

Viele Familien wünschen sich ein Leben im eigenen Traumhaus – Familie Schrödel aus Rehau in Oberfranken hat den Schritt gewagt. …

zur Referenz

Stadtvilla

Erfahrung mit Rötzer: Bauherr Wirth berichtet

Das Projekt „Hausbau“ ist ein zutiefst persönliches Vorhaben, das auf gegenseitigem Vertrauen beruht. Gerade deswegen ist es so …

zur Referenz

STADTVILLA

Hausbau in München: Familie Dr. Leitner baut sich ihr exklusives Ziegel-Massiv-Traumhaus

Den Traum vom exklusiven Eigenheim hatte Familie Dr. Leitner schon lange. Das Grundstück in München-Grünwald gehörte ihnen …

zur Referenz

SATTELDACH

Hausbau-Erfahrung mit Rötzer: Familie Götz-Klein erfüllt sich den Traum vom Eigenheim

Familie Götz hat das Abenteuer gewagt und sich den Traum von den eigenen vier Wänden erfüllt. Im folgenden Beitrag berichten die …

zur Referenz

SATTELDACH

Erfahrungsbericht zum Hausbau: Das Großprojekt von Familie Floer in Glonn

Wer träumt ihn nicht – den Traum vom eigenen Haus? Familie Floer erfüllt sich 2011 diesen Traum und verfasste im Nachgang einen …

zur Referenz

DOPPEL- /REIHENHAUS

Neubau in einer bestehenden Reihenhaussiedlung? Herausforderung von Familie Reiß angenommen!

Seit Anfang der 1970er Jahre beschäftigen wir uns bei Rötzer Ziegel Element Haus mit der Vorfertigung von Ein- und …

zur Referenz

    Unsere
    Referenzen

    Individuell. Inspirierend.
    nach Kundenwunsch.

    mehr erfahren

    Jetzt Kontakt
    aufnehmen

    Hier gehts zu unserem
    Kontaktformular.

    zur Anfrage