Ein 5-Familienhaus als Immobilieninvestment
Mehrfamilienhaus

Erfolgsgeschichte

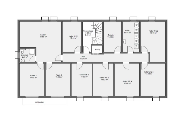
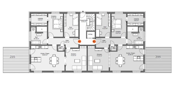
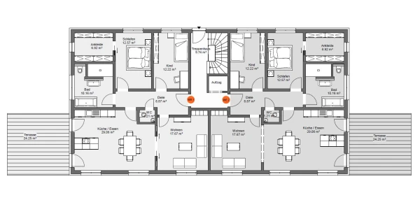
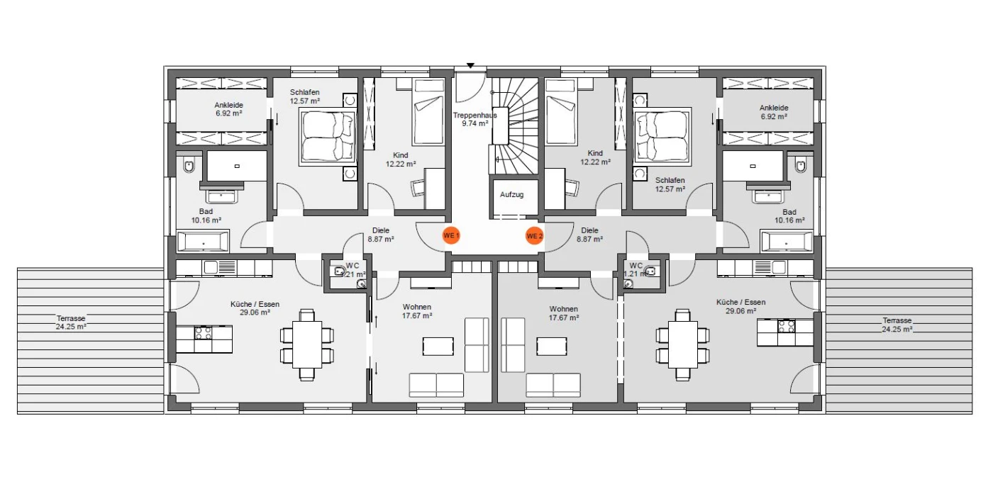
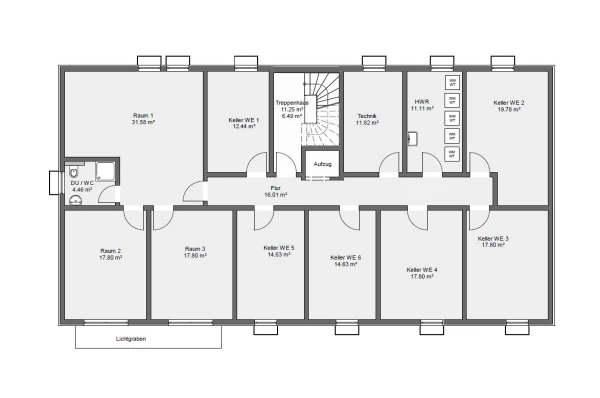
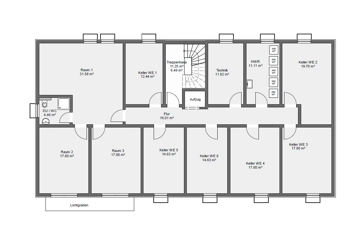
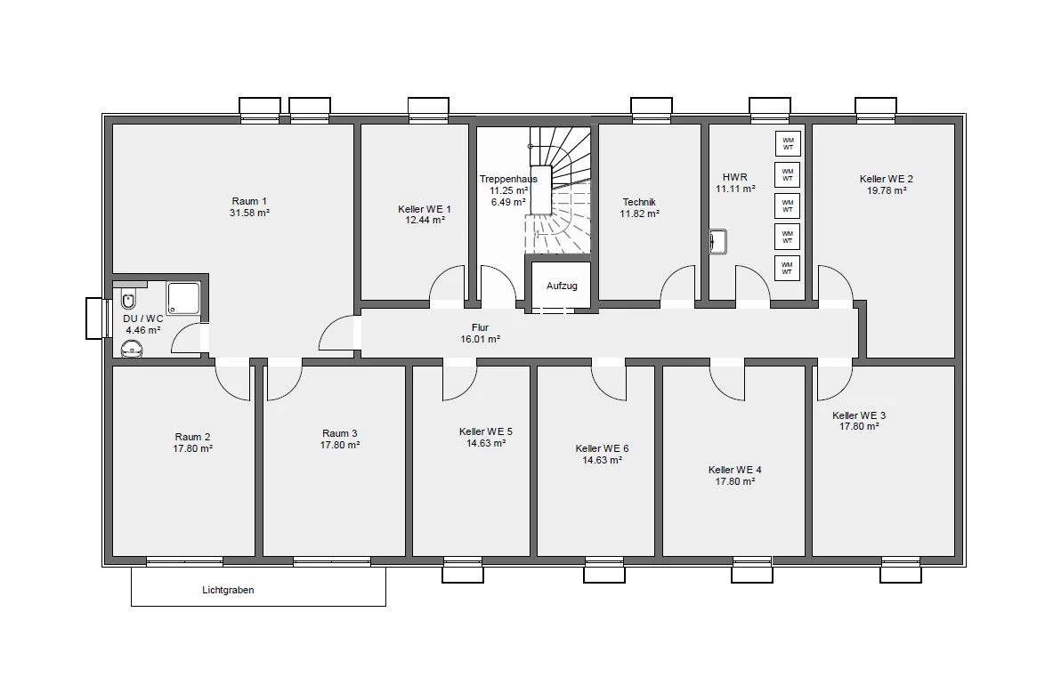
Fünf Wohneinheiten unter einem Dach

Immobilien gelten seit jeher als eine der stabilsten Formen des Anlagevermögens. Insbesondere der Bau in Massivbauweise bietet zahlreiche Vorteile, sowohl hinsichtlich der Langlebigkeit als auch der Wertbeständigkeit des Objekts. Im oberbayerischen Aschheim durften wir im Jahr 2020 ein Mehrfamilienhaus mit fünf Wohneinheiten realisieren.

Nachdem wir uns zum Bau eines Mehrfamilienhauses entschlossen hatten, haben wir uns auf die Suche nach einem Bauträger gemacht. Wichtig war uns, einen solventen, mittelständischen Partner zu finden. Als wir dann mit einem Vertreter von Rötzer gesprochen haben, waren wir schnell positiv gestimmt. Wir fühlten uns durch die freundlichen Mitarbeiter auch bei den weiteren vorbereitenden Gesprächen sehr kompetent beraten.

Familie Anneser

Quote Quote

Das Gesamtpaket überzeugte

In der heutigen Zeit, in der Globalisierung und Massenproduktion dominieren, gewinnt das Thema Regionalität immer mehr an Bedeutung. So auch bei Familie Anneser. Dass die Produktion eines Rötzer-Ziegel-Element-Hauses im eigenen Werk in Rötz in der Oberpfalz erfolgt, war ein großes Plus für uns. Einen weiteren wichtigen Faktor für die Realisierung mit Rötzer-Ziegel-Element-Haus stellte das gute Preis-/Leistungsverhältnis dar.

Ein verlässlicher Partner
von Anfang an

Nach der Unterzeichnung des Bauvertrages ging es in kürzester Zeit mit der Projektierung und Bemusterung des Bauprojektes weiter. Egal, ob Böden, Fenster, Türen, Armaturen oder Sanitärausstattung – all diese Entscheidungen galt es zu treffen. Zwei Tage lang wurde Familie Anneser von unseren Bau-Profis im sogenannten Bemusterungszentrum in Rötz beraten. Bei der Ausstattung eines Mehrfamilienhauses, das sich an Mieter richtet, ist es schließlich entscheidend, sowohl Funktionalität als auch Ästhetik in Einklang zu bringen.

In der Planungs- und Bauphase wurde unser erster Eindruck nicht nur bestätigt, sondern unsere Erwartungen wurden mehr als erfüllt. Bei Problemen wurden Lösungen schnell gesucht und auch umgesetzt.

Familie Anneser

Quote Quote
Ein 5-Familienhaus als Immobilieninvestment
Ein 5-Familienhaus als Immobilieninvestment
Ein 5-Familienhaus als Immobilieninvestment

Immer wieder mit Rötzer

„Wir hatten einen Ansprechpartner, der so gut wie immer erreichbar war. Auch nach der Übergabe stand und steht uns Rötzer weiterhin zur Seite. Verlässlich, kompetent und lösungsorientiert: Wir würden jederzeit wieder mit Rötzer als Partner bauen.", so der Bauherr auf die Frage zur Erfahrung mit Firma Rötzer.

Wir bedanken uns ganz herzlich für dieses tolle Lob und die angenehme Baupartnerschaft!

DATEN ZUM HAUS

Baujahr

2020

Haustyp

Mehrfamilienhaus

Dachform

Satteldach

Geschosse / Etagen

4

Dachneigung

32,9 Grad

Wohnfläche gesamt

475 qm

WEITERE ERFOLGSGESCHICHTEN

Einfamilienhaus

Flachdach-Traumhaus | Klassische Moderne

Dieser Bauhaus-Quader liegt nur wenige Minuten von der Würzburger Residenz entfernt. Der Eingangsbereich ist das Gesicht eines …

zur Referenz

Einfamilienhaus

Moderner Bungalow bei Regensburg

In Zeitlarn bei Regensburg entstand dieser einladende Bungalow, der mit klarer Architektur, durchdachter Raumaufteilung und einem …

zur Referenz

Einfamilienhaus

Der absolute Wohntraum

Ein echter Hingucker! Dieses Einfamilienhaus vereint modernes Design, klare Linien und höchste Bauqualität. In sonniger Hanglage …

zur Referenz

Doppelhaushälfte

Eine moderne, stilvolle Doppelhaushälfte in Massivbauweise

Für viele Familien ist der Bau eines Eigenheims ein Lebenstraum. So auch für unsere Baufamilie, die sich im Landkreis Rosenheim …

zur Referenz

Einfamilienhaus

178m² Wohnglück - viel Platz für die gesamte Familie!

Im oberbayerischen Landkreis Fürstenfeldbruck hatte Familie S. diesen einen ganz besonderen Traum. Ein individuell geplantes …

zur Referenz

MEHRFAMILIENHAUS

Zweifamilienhaus bauen: doppeltes Zuhause, doppeltes Glück!

Im Münchner Stadtteil Obersendling finden gleich zwei Parteien auf vier Etagen ihr Glück – nämlich im Zweifamilienhaus der …

zur Referenz

DOPPEL- /REIHENHAUS

„Wiederholungstäter“ baut auf Rötzer-Qualität: Attraktive Doppelhaus-hälften in Höhenkirchen

Selbst, wenn man einen Neubau nicht persönlich bezieht, wünscht man sich und seinen Mietern einen reibungslosen Bauablauf und …

zur Referenz

EINFAMILIENHAUS

Land-Feeling: Ein modernes Creativ-Haus in ländlicher Lage

"So ein Hausbau ist echt anstrengend.“ Als Stefan Winzinger mit dem Gedanken spielte, sich ein Eigenheim zu schaffen, hörte er …

zur Referenz

EINFAMILIENHAUS

Moderner Kubus: Ein Zuhause mit klarem Wohlfühlfaktor.

Zuhause bei Familie Teschke: Wir wollten wissen, was ist den Menschen in den eigenen vier Wänden besonders wichtig, was machen …

zur Referenz

EINFAMILIENHAUS

Einfamilienhaus in Starnberg: Darüber staunen sogar die Nachbarn

Ein neues Haus bedeutet in der Regel auch neue Nachbarn. Familie Rittweger hatte gleich doppeltes Glück, als sie 2019 in ihr …

zur Referenz

EINFAMILIENHAUS

Einfamilienhaus in Grünsfeld: Darum hat Familie Göbel sich für ein Rötzer Ziegel Element Haus entschieden

Viele Baufamilien kämpfen lange vor der eigentlichen Bauplanung mit der Überlegung, ob sie ein Fertighaus in Holzständerweise …

zur Referenz

EINFAMILIENHAUS

Erfolgreicher Bau auch in der Krise: Familie Müller freut sich über ihr neues Einfamilienhaus

Manchmal läuft einfach alles wie am Schnürchen – und das trotz Ausnahmesituation. Denn wer beschlossen hat, im Jahr 2021 zu …

zur Referenz

DOPPEL- /REIHENHAUS

Hausbau in Stuttgart: Familie Battiato berichtet von ihrem Rötzer-Bauerlebnis

Familie Battiato begann ihre Reise im Rötzer-Musterhaus Stuttgart. Hier informierten sich die zukünftigen Eigenheim-Besitzer über …

zur Referenz

Mehrfamilienhaus

Mehrfamilienhaus bauen: Moderner 3-Spänner in München

Traumhäuser entstehen nicht immer zur Nutzung für die eigene Familie, häufig bauen wir auch Mehrfamilienhäuser zur Vermietung – …

zur Referenz

EINFAMILIENHAUS

Zuverlässiges Bauunternehmen in der Oberpfalz: So war der Hausbau mit Rötzer

Als Hoteliers-Familie blieb Familie Greiner aus Neunburg vorm Wald nicht viel Zeit, um sich selbst um den Hausbau zu kümmern. …

zur Referenz

STADTVILLA

Hausbau in Regensburg: Vom Traum zur Realität in nur einem Jahr

Familie Scheck entdeckte Rötzer auf einer Bau-Messe im Raum Regensburg und schnell stand fest, dass das eigene Traumhaus in …

zur Referenz

SATTELDACH

Hausbau in der Oberpfalz: schnell & massiv

In der schönen Oberpfalz verwirklichte sich für Familie Duschner aus Dieterskirchen der Traum vom Eigenheim. Wichtig war der …

zur Referenz

STADTVILLA

Familie Schrödel erzählt von ihren Erfahrungen mit Rötzer-Ziegel-Element-Haus: so entstand ihre Stadtvilla.

Viele Familien wünschen sich ein Leben im eigenen Traumhaus – Familie Schrödel aus Rehau in Oberfranken hat den Schritt gewagt. …

zur Referenz

Stadtvilla

Erfahrung mit Rötzer: Bauherr Wirth berichtet

Das Projekt „Hausbau“ ist ein zutiefst persönliches Vorhaben, das auf gegenseitigem Vertrauen beruht. Gerade deswegen ist es so …

zur Referenz

STADTVILLA

Hausbau in München: Familie Dr. Leitner baut sich ihr exklusives Ziegel-Massiv-Traumhaus

Den Traum vom exklusiven Eigenheim hatte Familie Dr. Leitner schon lange. Das Grundstück in München-Grünwald gehörte ihnen …

zur Referenz

SATTELDACH

Hausbau-Erfahrung mit Rötzer: Familie Götz-Klein erfüllt sich den Traum vom Eigenheim

Familie Götz hat das Abenteuer gewagt und sich den Traum von den eigenen vier Wänden erfüllt. Im folgenden Beitrag berichten die …

zur Referenz

SATTELDACH

Erfahrungsbericht zum Hausbau: Das Großprojekt von Familie Floer in Glonn

Wer träumt ihn nicht – den Traum vom eigenen Haus? Familie Floer erfüllt sich 2011 diesen Traum und verfasste im Nachgang einen …

zur Referenz

DOPPEL- /REIHENHAUS

Neubau in einer bestehenden Reihenhaussiedlung? Herausforderung von Familie Reiß angenommen!

Seit Anfang der 1970er Jahre beschäftigen wir uns bei Rötzer Ziegel Element Haus mit der Vorfertigung von Ein- und …

zur Referenz

    Unsere
    Referenzen

    Individuell. Inspirierend.
    nach Kundenwunsch.

    mehr erfahren

    Jetzt Kontakt
    aufnehmen

    Hier gehts zu unserem
    Kontaktformular.

    zur Anfrage