Zweifamilienhaus bauen: doppeltes Zuhause, doppeltes Glück!
MEHRFAMILIENHAUS

Erfolgsgeschichte

Doppeltes Zuhause, doppeltes Glück!

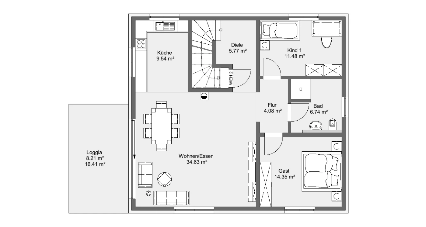
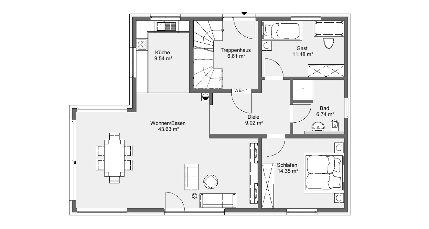
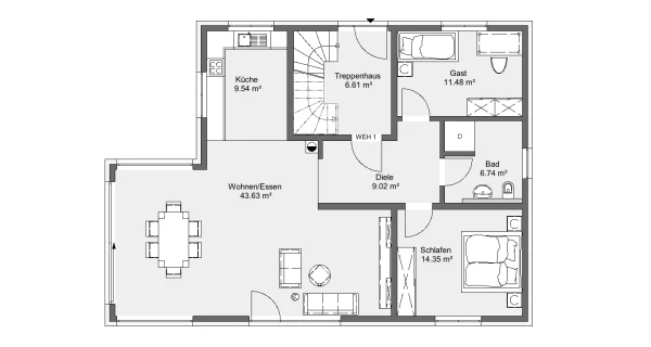
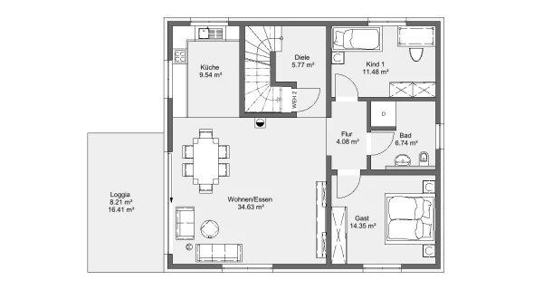
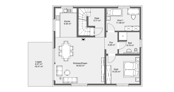
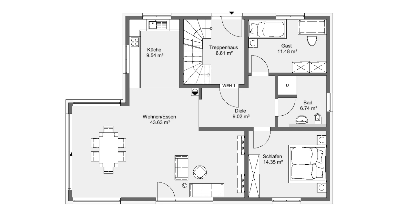
Im Münchner Stadtteil Obersendling finden gleich zwei Parteien auf vier Etagen ihr Glück – nämlich im Zweifamilienhaus der Familie Hug. Die erste Wohneinheit im Erdgeschoss genießt die angenehme Atmosphäre des massiv gebauten Wintergartens. Die zweite Wohneinheit, die sich über das Ober- und das Dachgeschoss erstreckt, profitiert von der darüber angelegten Dachterrasse. Ein Ort zum Wohlfühlen im Trubel der Großstadt.

Zweifamilienhaus bauen in München – lohnt sich das?

In Großstädten wie München bieten Zweifamilienhäuser eine clevere Lösung für die vielfältigen Herausforderungen des städtischen Wohnens. Sie ermöglichen eine effiziente Nutzung begrenzter Grundstücksflächen, da zwei unabhängige Wohneinheiten auf einem Grundstück Platz finden. Dadurch, dass die Einheiten voneinander getrennt sind, ergeben sich verschiedene Möglichkeiten für die Nutzung, wie zum Beispiel:

  • Mehrgenerationenhaus: Verschiedene Generationen leben gemeinsam unter einem Dach. In einem Zweifamilienhaus werden Privatsphäre und Unabhängigkeit trotzdem gewahrt.
  • Teilvermietung: Die Haupteinheit wird von den Eigentümern bewohnt und die Nebeneinheit dauerhaft oder als Ferienwohnung vermietet, was die monatlichen Kosten reduziert.
  • Komplette Vermietung: Beide Wohneinheiten werden vermietet und generieren auf diese Weise doppelte Mieteinnahmen.
  • Gesellschaftliche Nutzung: Die zusätzliche Fläche kann gemeinschaftlich genutzt werden, entweder als Arbeitsfläche z. B. für Büroräume oder zu Unterhaltungszwecken.

Rundum zufrieden

Auf die Frage, wieso sich die Familie beim Bau des Zweifamilienhauses für Rötzer entschieden hat, antwortet sie: „Weil wir von der Ziegel-Element-Bauweise überzeugt waren und die Firma Rötzer auch noch eine bayerische Firma ist“. Und bis heute sind sie zufrieden mit ihrer Entscheidung. „Die Beratung bei der Bemusterung war unfassbar gut, der Hausbau an sich ging sehr schnell. Unser Bauleiter Herr Dobmeier war sehr kompetent und immer erreichbar, was uns vieles erleichtert hat.“

Das Ergebnis kann sich sehen lassen: Das Zweifamilienhaus in München punktet dank Wintergarten und Dachterrasse nicht nur durch zusätzlichen, atmosphärischen Wohnraum, sondern auch mit ästhetischen Details. So wurde die Spindeltreppe im Außenbereich passend zum Farbkonzept des Hauses in Schiefergrau gestaltet und fügt sich harmonisch ins Gesamtbild ein. Zudem besitzt das Haus eine persönliche Note der Bauherren, die selbstständig die Bodenbelagsarbeiten in den Wohn- und Schlafräumen in Eigenleistung ausführten.

Wir würden die Firma Rötzer jederzeit weiterempfehlen, was wir natürlich auch schon gemacht haben.

Familie Hug, München

Quote Quote

DATEN ZUM HAUS

Baujahr

2021

Haustyp

Zweifamilienhaus

Dachform

Satteldach

Geschosse / Etagen

3

Heizsystem

Fußbodenheizung

Wohnfläche gesamt

248 qm

WEITERE ERFOLGSGESCHICHTEN

Einfamilienhaus

Flachdach-Traumhaus | Klassische Moderne

Dieser Bauhaus-Quader liegt nur wenige Minuten von der Würzburger Residenz entfernt. Der Eingangsbereich ist das Gesicht eines …

zur Referenz

Einfamilienhaus

Moderner Bungalow bei Regensburg

In Zeitlarn bei Regensburg entstand dieser einladende Bungalow, der mit klarer Architektur, durchdachter Raumaufteilung und einem …

zur Referenz

Einfamilienhaus

Der absolute Wohntraum

Ein echter Hingucker! Dieses Einfamilienhaus vereint modernes Design, klare Linien und höchste Bauqualität. In sonniger Hanglage …

zur Referenz

Doppelhaushälfte

Eine moderne, stilvolle Doppelhaushälfte in Massivbauweise

Für viele Familien ist der Bau eines Eigenheims ein Lebenstraum. So auch für unsere Baufamilie, die sich im Landkreis Rosenheim …

zur Referenz

Mehrfamilienhaus

Ein 5-Familienhaus als Immobilieninvestment

Immobilien gelten seit jeher als eine der stabilsten Formen des Anlagevermögens. Insbesondere der Bau in Massivbauweise bietet …

zur Referenz

Einfamilienhaus

178m² Wohnglück - viel Platz für die gesamte Familie!

Im oberbayerischen Landkreis Fürstenfeldbruck hatte Familie S. diesen einen ganz besonderen Traum. Ein individuell geplantes …

zur Referenz

DOPPEL- /REIHENHAUS

„Wiederholungstäter“ baut auf Rötzer-Qualität: Attraktive Doppelhaus-hälften in Höhenkirchen

Selbst, wenn man einen Neubau nicht persönlich bezieht, wünscht man sich und seinen Mietern einen reibungslosen Bauablauf und …

zur Referenz

EINFAMILIENHAUS

Land-Feeling: Ein modernes Creativ-Haus in ländlicher Lage

"So ein Hausbau ist echt anstrengend.“ Als Stefan Winzinger mit dem Gedanken spielte, sich ein Eigenheim zu schaffen, hörte er …

zur Referenz

EINFAMILIENHAUS

Moderner Kubus: Ein Zuhause mit klarem Wohlfühlfaktor.

Zuhause bei Familie Teschke: Wir wollten wissen, was ist den Menschen in den eigenen vier Wänden besonders wichtig, was machen …

zur Referenz

EINFAMILIENHAUS

Einfamilienhaus in Starnberg: Darüber staunen sogar die Nachbarn

Ein neues Haus bedeutet in der Regel auch neue Nachbarn. Familie Rittweger hatte gleich doppeltes Glück, als sie 2019 in ihr …

zur Referenz

EINFAMILIENHAUS

Einfamilienhaus in Grünsfeld: Darum hat Familie Göbel sich für ein Rötzer Ziegel Element Haus entschieden

Viele Baufamilien kämpfen lange vor der eigentlichen Bauplanung mit der Überlegung, ob sie ein Fertighaus in Holzständerweise …

zur Referenz

EINFAMILIENHAUS

Erfolgreicher Bau auch in der Krise: Familie Müller freut sich über ihr neues Einfamilienhaus

Manchmal läuft einfach alles wie am Schnürchen – und das trotz Ausnahmesituation. Denn wer beschlossen hat, im Jahr 2021 zu …

zur Referenz

DOPPEL- /REIHENHAUS

Hausbau in Stuttgart: Familie Battiato berichtet von ihrem Rötzer-Bauerlebnis

Familie Battiato begann ihre Reise im Rötzer-Musterhaus Stuttgart. Hier informierten sich die zukünftigen Eigenheim-Besitzer über …

zur Referenz

Mehrfamilienhaus

Mehrfamilienhaus bauen: Moderner 3-Spänner in München

Traumhäuser entstehen nicht immer zur Nutzung für die eigene Familie, häufig bauen wir auch Mehrfamilienhäuser zur Vermietung – …

zur Referenz

EINFAMILIENHAUS

Zuverlässiges Bauunternehmen in der Oberpfalz: So war der Hausbau mit Rötzer

Als Hoteliers-Familie blieb Familie Greiner aus Neunburg vorm Wald nicht viel Zeit, um sich selbst um den Hausbau zu kümmern. …

zur Referenz

STADTVILLA

Hausbau in Regensburg: Vom Traum zur Realität in nur einem Jahr

Familie Scheck entdeckte Rötzer auf einer Bau-Messe im Raum Regensburg und schnell stand fest, dass das eigene Traumhaus in …

zur Referenz

SATTELDACH

Hausbau in der Oberpfalz: schnell & massiv

In der schönen Oberpfalz verwirklichte sich für Familie Duschner aus Dieterskirchen der Traum vom Eigenheim. Wichtig war der …

zur Referenz

STADTVILLA

Familie Schrödel erzählt von ihren Erfahrungen mit Rötzer-Ziegel-Element-Haus: so entstand ihre Stadtvilla.

Viele Familien wünschen sich ein Leben im eigenen Traumhaus – Familie Schrödel aus Rehau in Oberfranken hat den Schritt gewagt. …

zur Referenz

Stadtvilla

Erfahrung mit Rötzer: Bauherr Wirth berichtet

Das Projekt „Hausbau“ ist ein zutiefst persönliches Vorhaben, das auf gegenseitigem Vertrauen beruht. Gerade deswegen ist es so …

zur Referenz

STADTVILLA

Hausbau in München: Familie Dr. Leitner baut sich ihr exklusives Ziegel-Massiv-Traumhaus

Den Traum vom exklusiven Eigenheim hatte Familie Dr. Leitner schon lange. Das Grundstück in München-Grünwald gehörte ihnen …

zur Referenz

SATTELDACH

Hausbau-Erfahrung mit Rötzer: Familie Götz-Klein erfüllt sich den Traum vom Eigenheim

Familie Götz hat das Abenteuer gewagt und sich den Traum von den eigenen vier Wänden erfüllt. Im folgenden Beitrag berichten die …

zur Referenz

SATTELDACH

Erfahrungsbericht zum Hausbau: Das Großprojekt von Familie Floer in Glonn

Wer träumt ihn nicht – den Traum vom eigenen Haus? Familie Floer erfüllt sich 2011 diesen Traum und verfasste im Nachgang einen …

zur Referenz

DOPPEL- /REIHENHAUS

Neubau in einer bestehenden Reihenhaussiedlung? Herausforderung von Familie Reiß angenommen!

Seit Anfang der 1970er Jahre beschäftigen wir uns bei Rötzer Ziegel Element Haus mit der Vorfertigung von Ein- und …

zur Referenz

    Unsere
    Referenzen

    Individuell. Inspirierend.
    nach Kundenwunsch.

    mehr erfahren

    Jetzt Kontakt
    aufnehmen

    Hier gehts zu unserem
    Kontaktformular.

    zur Anfrage