Erfahrung mit Rötzer: Bauherr Wirth berichtet
Stadtvilla

Erfolgsgeschichte

Erfahrung mit Rötzer: So verlief der Hausbau von Herrn Wirth bei Würzburg

Das Projekt „Hausbau“ ist ein zutiefst persönliches Vorhaben, das auf gegenseitigem Vertrauen beruht. Gerade deswegen ist es so wichtig, den passenden Bauträger für sich zu finden: Herr Wirth aus Arnstein bei Würzburg hat hier einen Volltreffer gelandet und möchte von seiner Erfahrung mit Rötzer Ziegel-Element-Haus berichten.

Im Jahr 2017 begab sich Herr Wirth auf die Suche nach einem Bauträger, um den lang gehegten Wunsch nach einem Eigenheim in die Tat umzusetzen. Feststand, dass der zukünftige Baupartner in wertbeständiger Massivweise bauen sollte. Bei seiner Recherche stieß Herr Wirth schnell auf das Unternehmen Rötzer Ziegel-Element-Haus aus Süddeutschland – was dabei sofort sein Interesse weckte: die einzigartige, modulare Ziegel-Element-Bauweise.

Ich bin sehr froh, dass ich auf die Kombination aus Fertighaus und massiver Ziegel-Bauweise vertraut habe. Dadurch konnte ich in der Bauphase wirklich viel Zeit einsparen. Diese positive Erfahrung mit Rötzer zu machen und live zu sehen, wie schnell mein Traumhaus letztendlich auf meinem Grundstück stand – das war nicht nur für mich, sondern auch für die Nachbarn einfach beeindruckend!

Daniel Wirth, Bauherr

Quote Quote
Erfahrung mit Rötzer: Bauherr Wirth berichtet
Erfahrung mit Rötzer: Bauherr Wirth berichtet
Erfahrung mit Rötzer: Bauherr Wirth berichtet

Von der Planung bis zur Fertigstellung: ein vertrauensvoller Ansprechpartner mit Erfahrung!

In der intensiven Planungsphase wurden die Bedürfnisse Herrn Wirths ermittelt. Dieses Ergebnis war die Grundlage für Wohnfläche, Haustyp, Innenarchitektur und Grundriss. Hierbei konnte sich Herr Wirth hundertprozentig auf die Beratung und den großen Erfahrungsschatz des Baupartners verlassen.

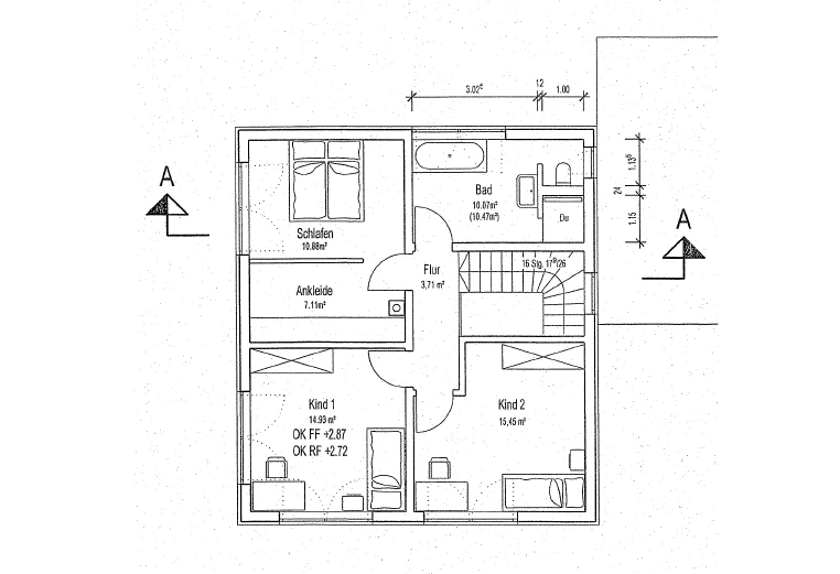
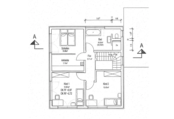
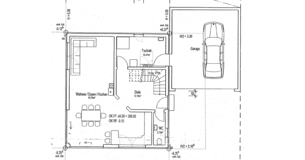
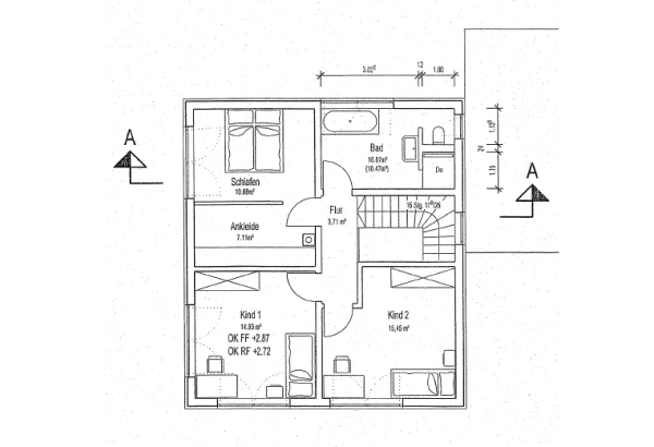
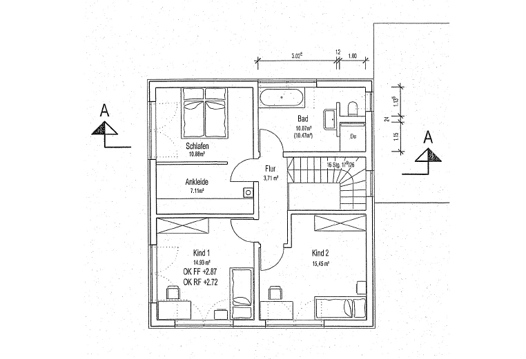
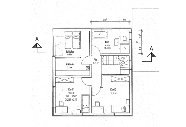
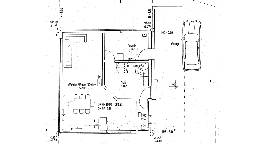
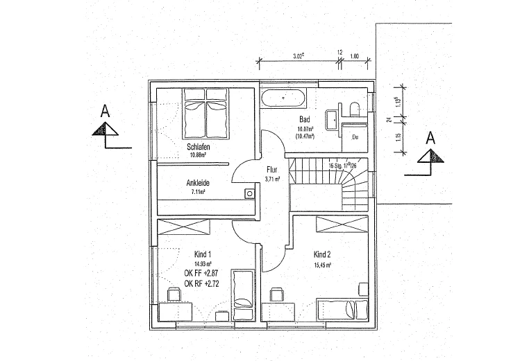
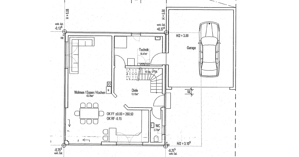
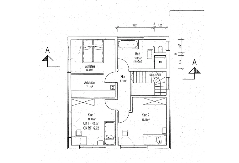
So stand nach 1 Woche der finale Plan für eine Stadtvilla auf zwei Ebenen über 130 m², ohne Keller. Die zwei Vollgeschosse wurden mit einem Walmdach versehen, sodass keine Dachschrägen die Räume verkleinern. Eines der vielen Highlights dieses Eigenheims bei Würzburg ist die moderne Stahltreppe mit Stufen in Eiche keilgezinkt – ein absoluter Blickfang im Eingangsbereich und ein ausdrücklicher Wunsch von Herrn Wirth.

Die Bauphase begann Ende Juli 2017 und verlief ohne Probleme. Herr Wirth, aber auch sein Vater, der gleich ums Eck wohnt, waren täglich vor Ort, um gespannt den Baufortschritt zu verfolgen und in enger Zusammenarbeit mit dem Bauleiter Absprachen zu treffen. Dass eine Baustelle so "sauber" sein kann, war für Herrn Wirth unvorstellbar. In keiner Zeit lagen leere Verpackungen oder gar von draußen hereingetragener Dreck auf der Baustelle. Außen wie innen, durchweg aufgeräumt und zum Feierabend durchgekehrt, sogar die Straße!!! Dank der Ziegel-Element-Bauweise ging der Hausbau außerordentlich schnell und das Eigenheim wurde nach den vorab erstellten Plänen erbaut.

Anfang Dezember 2017 bekam Herr Wirth den Schlüssel für seine bezugsfertige Stadtvilla überreicht – so stand dem ersten Weihnachten im eigenen Domizil nichts mehr im Weg.

Glücklicher Hauseigentümer, der seine Erfahrung mit Rötzer schätzt und auch gerne teilt

"Die größte Angst war die, dass die Kosten nicht gehalten werden. Im Nachgang lache ich über diese unbegründete Angst. In keiner Phase war von Preisabweichungen oder neuen Kosten die Rede. Alles war transparent und professionell geplant. Ich hätte mir keinen besseren Partner an meiner Seite vorstellen können. Die Erfahrung, mit Rötzer Ziegel-Element-Haus zu bauen, war durchweg positiv und auch menschlich hat es sofort gepasst! Ich war bereits im Vertrieb tätig und wollte auch wieder eine Tätigkeit im Vertrieb, unter der Voraussetzung, dass ich voll und ganz hinter dem Produkt und der Firma stehen kann. Rötzer erfüllte genau diese Voraussetzungen. Darum fragte ich nach der Bauphase an, als freier Handelsvertreter für Rötzer tätig werden zu können. Gerade weil die Chemie so stimmte, war die Firma darüber begeistert und nahm mich herzlich in die Rötzer-Familie auf. Wie viele Hausverkäufer können schon von sich behaupten, mit der Firma, für die sie vertreiben, selbst schon ein Haus gebaut zu haben? Ich stehe voll und ganz hinter dem Gesamtprodukt Rötzer-Ziegel-Element-Haus. Einmal Rötzer, immer Rötzer!"

Daniel Wirth, Bauherr und freier Handelsvertreter für Rötzer-Ziegel-Element-Haus

Herr Wirth steht auch für persönliche Nachfragen zum Bauprojekt gerne zur Verfügung und öffnet sein Eigenheim nach vorheriger Terminabsprache zur Besichtigung.

DATEN ZUM HAUS

Baujahr

2017

Haustyp

Einfamilienhaus

Dachform

Walmdach

Geschosse / Etagen

2

Wohnfläche gesamt

132 qm

WEITERE ERFOLGSGESCHICHTEN

Einfamilienhaus

Flachdach-Traumhaus | Klassische Moderne

Dieser Bauhaus-Quader liegt nur wenige Minuten von der Würzburger Residenz entfernt. Der Eingangsbereich ist das Gesicht eines …

zur Referenz

Einfamilienhaus

Moderner Bungalow bei Regensburg

In Zeitlarn bei Regensburg entstand dieser einladende Bungalow, der mit klarer Architektur, durchdachter Raumaufteilung und einem …

zur Referenz

Einfamilienhaus

Der absolute Wohntraum

Ein echter Hingucker! Dieses Einfamilienhaus vereint modernes Design, klare Linien und höchste Bauqualität. In sonniger Hanglage …

zur Referenz

Doppelhaushälfte

Eine moderne, stilvolle Doppelhaushälfte in Massivbauweise

Für viele Familien ist der Bau eines Eigenheims ein Lebenstraum. So auch für unsere Baufamilie, die sich im Landkreis Rosenheim …

zur Referenz

Mehrfamilienhaus

Ein 5-Familienhaus als Immobilieninvestment

Immobilien gelten seit jeher als eine der stabilsten Formen des Anlagevermögens. Insbesondere der Bau in Massivbauweise bietet …

zur Referenz

Einfamilienhaus

178m² Wohnglück - viel Platz für die gesamte Familie!

Im oberbayerischen Landkreis Fürstenfeldbruck hatte Familie S. diesen einen ganz besonderen Traum. Ein individuell geplantes …

zur Referenz

MEHRFAMILIENHAUS

Zweifamilienhaus bauen: doppeltes Zuhause, doppeltes Glück!

Im Münchner Stadtteil Obersendling finden gleich zwei Parteien auf vier Etagen ihr Glück – nämlich im Zweifamilienhaus der …

zur Referenz

DOPPEL- /REIHENHAUS

„Wiederholungstäter“ baut auf Rötzer-Qualität: Attraktive Doppelhaus-hälften in Höhenkirchen

Selbst, wenn man einen Neubau nicht persönlich bezieht, wünscht man sich und seinen Mietern einen reibungslosen Bauablauf und …

zur Referenz

EINFAMILIENHAUS

Land-Feeling: Ein modernes Creativ-Haus in ländlicher Lage

"So ein Hausbau ist echt anstrengend.“ Als Stefan Winzinger mit dem Gedanken spielte, sich ein Eigenheim zu schaffen, hörte er …

zur Referenz

EINFAMILIENHAUS

Moderner Kubus: Ein Zuhause mit klarem Wohlfühlfaktor.

Zuhause bei Familie Teschke: Wir wollten wissen, was ist den Menschen in den eigenen vier Wänden besonders wichtig, was machen …

zur Referenz

EINFAMILIENHAUS

Einfamilienhaus in Starnberg: Darüber staunen sogar die Nachbarn

Ein neues Haus bedeutet in der Regel auch neue Nachbarn. Familie Rittweger hatte gleich doppeltes Glück, als sie 2019 in ihr …

zur Referenz

EINFAMILIENHAUS

Einfamilienhaus in Grünsfeld: Darum hat Familie Göbel sich für ein Rötzer Ziegel Element Haus entschieden

Viele Baufamilien kämpfen lange vor der eigentlichen Bauplanung mit der Überlegung, ob sie ein Fertighaus in Holzständerweise …

zur Referenz

EINFAMILIENHAUS

Erfolgreicher Bau auch in der Krise: Familie Müller freut sich über ihr neues Einfamilienhaus

Manchmal läuft einfach alles wie am Schnürchen – und das trotz Ausnahmesituation. Denn wer beschlossen hat, im Jahr 2021 zu …

zur Referenz

DOPPEL- /REIHENHAUS

Hausbau in Stuttgart: Familie Battiato berichtet von ihrem Rötzer-Bauerlebnis

Familie Battiato begann ihre Reise im Rötzer-Musterhaus Stuttgart. Hier informierten sich die zukünftigen Eigenheim-Besitzer über …

zur Referenz

Mehrfamilienhaus

Mehrfamilienhaus bauen: Moderner 3-Spänner in München

Traumhäuser entstehen nicht immer zur Nutzung für die eigene Familie, häufig bauen wir auch Mehrfamilienhäuser zur Vermietung – …

zur Referenz

EINFAMILIENHAUS

Zuverlässiges Bauunternehmen in der Oberpfalz: So war der Hausbau mit Rötzer

Als Hoteliers-Familie blieb Familie Greiner aus Neunburg vorm Wald nicht viel Zeit, um sich selbst um den Hausbau zu kümmern. …

zur Referenz

STADTVILLA

Hausbau in Regensburg: Vom Traum zur Realität in nur einem Jahr

Familie Scheck entdeckte Rötzer auf einer Bau-Messe im Raum Regensburg und schnell stand fest, dass das eigene Traumhaus in …

zur Referenz

SATTELDACH

Hausbau in der Oberpfalz: schnell & massiv

In der schönen Oberpfalz verwirklichte sich für Familie Duschner aus Dieterskirchen der Traum vom Eigenheim. Wichtig war der …

zur Referenz

STADTVILLA

Familie Schrödel erzählt von ihren Erfahrungen mit Rötzer-Ziegel-Element-Haus: so entstand ihre Stadtvilla.

Viele Familien wünschen sich ein Leben im eigenen Traumhaus – Familie Schrödel aus Rehau in Oberfranken hat den Schritt gewagt. …

zur Referenz

STADTVILLA

Hausbau in München: Familie Dr. Leitner baut sich ihr exklusives Ziegel-Massiv-Traumhaus

Den Traum vom exklusiven Eigenheim hatte Familie Dr. Leitner schon lange. Das Grundstück in München-Grünwald gehörte ihnen …

zur Referenz

SATTELDACH

Hausbau-Erfahrung mit Rötzer: Familie Götz-Klein erfüllt sich den Traum vom Eigenheim

Familie Götz hat das Abenteuer gewagt und sich den Traum von den eigenen vier Wänden erfüllt. Im folgenden Beitrag berichten die …

zur Referenz

SATTELDACH

Erfahrungsbericht zum Hausbau: Das Großprojekt von Familie Floer in Glonn

Wer träumt ihn nicht – den Traum vom eigenen Haus? Familie Floer erfüllt sich 2011 diesen Traum und verfasste im Nachgang einen …

zur Referenz

DOPPEL- /REIHENHAUS

Neubau in einer bestehenden Reihenhaussiedlung? Herausforderung von Familie Reiß angenommen!

Seit Anfang der 1970er Jahre beschäftigen wir uns bei Rötzer Ziegel Element Haus mit der Vorfertigung von Ein- und …

zur Referenz

    Unsere
    Referenzen

    Individuell. Inspirierend.
    nach Kundenwunsch.

    mehr erfahren

    Jetzt Kontakt
    aufnehmen

    Hier gehts zu unserem
    Kontaktformular.

    zur Anfrage