Erfolgsgeschichte
Hausbau in der Oberpfalz: ein massives Einfamilienhaus aus Ziegel-Elementen
In der schönen Oberpfalz verwirklichte sich für Familie Duschner aus Dieterskirchen der Traum vom Eigenheim. Wichtig war der Familie, dass der Hausbau schnell und trotzdem in Massivbauweise umgesetzt wird. Mit diesen Wünschen fanden die Duschners den idealen Bauträger letztendlich in Rötzer Ziegel Element Haus.
Wir waren lange auf der Suche nach dem perfekten Partner für unseren Hausbau in der Oberpfalz. Die Suche hat sich ganz schön schwierig gestaltet, denn unsere Ansprüche waren: massiv und schnell zu bauen, aber vor allem mit einem kompetenten Partner, der dies auch hochwertig umsetzen kann und seine Kunden nicht nur nach „Schema F“ abfertigt.
Familie Duschner
Das Grundstück in Dieterskirchen war gekauft, die Vorstellung vom Traumhaus stand: ein freistehendes Einfamilienhaus mit Keller sollte es sein. Doch Familie Duschner musste bereits zu Beginn ihres Bauprojektes feststellen, dass beim Hausbau nicht immer alles nach Plan läuft. Denn nach dem Bodengutachten stand schnell fest, dass ein Keller bei diesem Grundstück nicht infrage kam. In dieser zunächst ernüchternden Situation war Familie Duschner froh, Rötzer Ziegel Element Haus als erfahrenen Partner an der Seite zu haben:
Trotz der Gegebenheiten hat man sich mit ganz viel Geduld unseren neuen Plänen und der Umplanung gewidmet, die zu 100 % auf uns zugeschnitten waren. Fazit: Glück im Unglück.
Familie Duschner

Hausbau in der Oberpfalz mit Rötzer Ziegel Element Haus
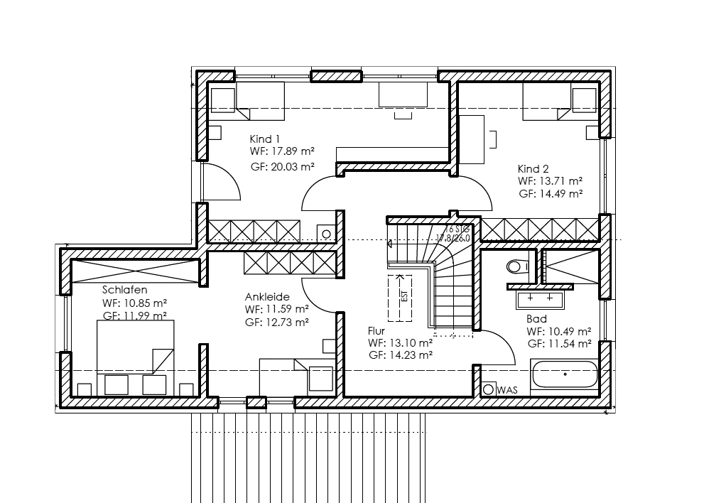
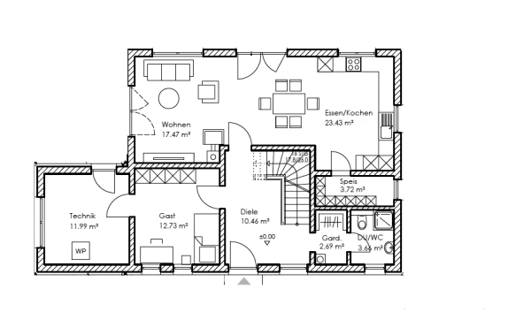
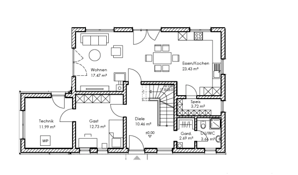
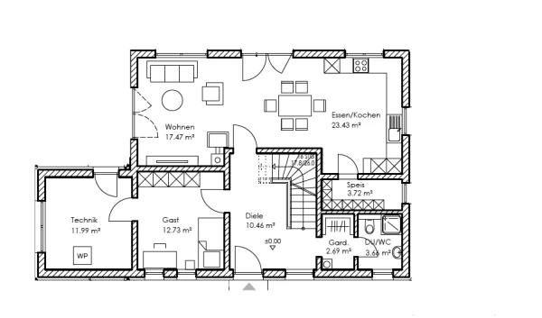
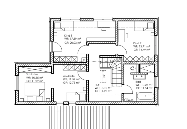
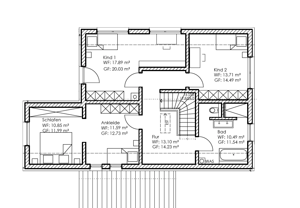
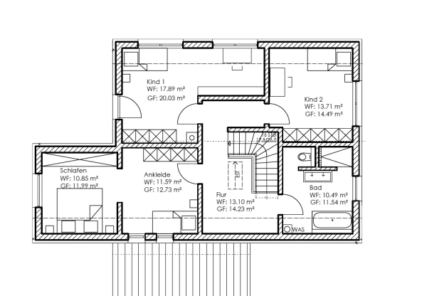
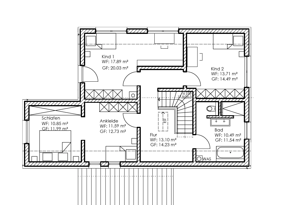
Die Baupläne wurden an die Grundstücksgegebenheiten und die Wünsche der Baufamilie angepasst. Teil des neuen Plans war auch die praktische Ziegel-Klima-Decke von Rötzer Ziegel Element Haus, welche die Vorzüge des gebranntes Ziegels mit dem Prinzip natürlicher Wärmestrahlung und stiller Kühlung vereint. So entstand – zumindest schon einmal auf dem Papier – das perfekte Traumhaus auf insgesamt 152 m². Die Vorfreude stieg und der Weg war frei für die Umsetzung:
- Vertragsunterzeichnung: August 2019
- Bemusterung: November 2019
- Eingabe-/Werksplan: Dezember 2019
- Baugenehmigung: Januar 2020
- Bodenplatte/Haus: Februar 2020
- Hausübergabe: August 2020
„Wir haben uns vom ersten Tag an in beste Hände begeben und waren/sind rundum zufrieden mit dem gesamten Team und den Leistungen der Fa. Rötzer-Ziegel-Element-Haus GmbH! Unser Fazit: wenn wir nochmal bauen würden, dann wieder mit dem gleichen Partner.“ – Familie Duschner
Mehr Einblicke in dieses Bauprojekt erhalten Sie zusätzlich auf dem Instagram-Kanal von Frau Duschner: @black.design.love.house