Erfolgsgeschichte
Massivbauweise
und alles aus einer Hand
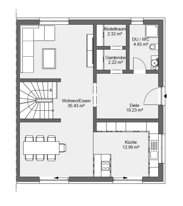
Für viele Familien ist der Bau eines Eigenheims ein Lebenstraum. So auch für unsere Baufamilie, die sich im Landkreis Rosenheim den Wunsch vom eigenen Haus erfüllt hat – genauer gesagt mit einer modernen Doppelhaushälfte in Massivbauweise.
Wir haben uns für Rötzer entschieden, weil wir in Massivbauweise bauen und alles aus einer Hand haben wollten. Hier hat uns das Konzept von Rötzer, die massiven Elemente bereits vorzufertigen und dann aufzustellen, überzeugt.
Familie S.
Vom Spatenstich bis zum Einzug
„Wir konnten unsere Wünsche einer massiven Bauweise und dennoch kurzen Bauzeit erfüllen“, so der Bauherr auf die Nachfrage, was ein entscheidender Pluspunkt zur Realisierung des Projektes mit der Firma Rötzer-Ziegel-Element-Haus war. Der Bau der Doppelhaushälfte verlief zügig: Vom ersten Spatenstich bis zum Einzug vergingen nur etwa neun Monate. Möglich wurde das durch die vorgefertigten Massivbauelemente, die wetterunabhängig produziert und vor Ort schnell montiert werden konnten.
Trotz der Geschwindigkeit kam die Qualität nicht zu kurz – ganz im Gegenteil: Durch die präzise Vorfertigung konnte die Familie auf eine besonders hochwertige und langlebige Bauweise setzen.
Persönliche Empfehlung und individuelle Gestaltungsmöglichkeiten
Der Kontakt zu Rötzer kam über Freunde zustande. Schon früh hatte die Familie eine klare Vorstellung ihres Traumhauses. „Unseren ersten Grundriss haben wir in Excel selbst gezeichnet und konnten mitverfolgen, wie mit professioneller Beratung und Planung daraus tatsächlich unser Eigenheim entstanden ist“, so die Bauherrin.
Diese aktive Mitgestaltung in Verbindung mit fachlicher Begleitung war für die Familie ein zentraler Aspekt der erfolgreichen Zusammenarbeit.
Zu Rötzer kamen wir über Empfehlungen eines befreundeten Paares. Durch kompetente Beratung und die Möglichkeiten, unsere individuellen Wünsche umzusetzen, waren wir schnell überzeugt.
Familie S. aus Wasserburg am Inn
Transparente Preisgestaltung
schafft Vertrauen
Neben Qualität und Individualität spielte für das Paar auch das Thema Kostenkontrolle eine wichtige Rolle: „Die Preisgestaltung war sehr transparent, sodass wir uns auch ehrlich und fair behandelt gefühlt haben.“
In einer Zeit, in der viele Bauherren mit versteckten Kosten oder intransparenten Angeboten kämpfen, war dies für die Familie ein weiterer Grund, sich bei Rötzer gut aufgehoben zu fühlen. Mit ihrer Doppelhaushälfte in Massivbauweise haben sich unsere Häuslebauer nicht nur den Traum vom eigenen Heim erfüllt, sondern auch eine wertbeständige Investition für die Zukunft geschaffen.
Und das Endergebnis kann sich mehr als sehen lassen. Schließlich hat die Bauherrin hier auch noch sehr viel Liebe auf Details gelegt, welche das Eigenheim zu einem richtigen Wohlfühlort machen. Helle Räume, warme Materialien, klare Linien – ein echtes Zuhause!
Vielen Dank für Ihr entgegengebrachtes Vertrauen und Ihre persönlichen Worte!
